|
二、作图读图题(共6分)
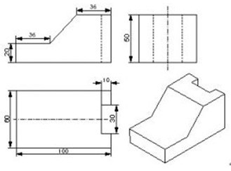
36.胡丽同学设计的台灯底座如图所示。根据立体图,完成下列问题:
(1)补全所缺三视图。

36(1)三视图

36(2)台灯底座
(2)台灯底座采用100×60×50的长方体铁块加工,对正面的划线合理的顺序是
①划线条1,量取尺寸l0;②划线条2,量取尺寸36;③划线条4,量取尺寸36;④量取尺寸10,确定位置A;⑤画线条3;⑥量取尺寸36,确定位置B
A.①②③⑤ B.②④⑥⑤
C.④②⑥⑤ D.③①②⑤
三、分析评价题(共2小题,37题6分,38题4分,共10分)
37.如图所示,在金属板上钻各种形状的孔,然后折弯就可成为很好的卫浴用品架。根据图示回答问题:

37 卫浴用品架
(1)下面是用金属板制作卫浴用品架的加工流程图,请在空格内填上所缺的环节。

37 加工流程图
(2)现要将卫浴用品架固定到磁砖墙面上,下列固定方法最合理的是
A.用水泥钉固定 B.用普通铁钉固定
C.用水泥固定 D.用膨胀螺钉固定
38.如图是某同学设计制作的学习用台灯,它主要由灯座、支撑架、灯罩与电子元器件等要素组成。请以台灯这个系统为例,分析该系统的一些基本特性,在题干中标有“ _ ”处填写符合要求的内容。

38 台灯
(1)它主要由灯座、支撑架、灯罩与电子元器件等要素组成,台灯的功能是各要素所没有的。这主要体现了系统的 。
(2)台灯的 功能体现了系统的目的性。
(3)台灯这一系统具有动态性,体现在 随着时间的推移电线会老化。
|